Skip to main content

Verschillende soorten plafondrails

Plafondrails bij tilliften – soorten, toepassingen en aandachtspunten

Een plafondlift bestaat uit twee hoofdonderdelen: de tilcassette (de motor) en de plafondrails. De cassette hebben we eerder besproken, maar minstens zo belangrijk is de keuze voor het juiste type rail. De juiste plafondrail zorgt voor comfort, veiligheid en efficiëntie. De verkeerde kan juist zorgen voor ongemak, beperkingen en onnodige kosten. Hieronder vind je een overzicht van de verschillende soorten plafondrails en waar je op moet letten bij de keuze.

Kleur van de plafondrails

De meeste plafondrails zijn gemaakt van wit gespoten aluminium. Dit past goed bij de standaard witte plafonds in Nederlandse woningen, waardoor de rail nauwelijks opvalt. Rails in aluminiumkleur zijn veel zichtbaarder. Sommige leveranciers kunnen de rails leveren in andere kleuren, maar dit brengt extra kosten met zich mee.

Witte plafondrail

Grijze monorail

Grijze rails bocht

Type 1 Vaste plafondrails, vast traject, monorail

Een vaste rail – ook wel monorail genoemd – is een enkel spoor met een vast traject. Denk aan een rechte rail van 3 meter boven het bed, voor een transfer van rolstoel naar bed. Monorails zijn verkrijgbaar in rechte delen, maar ook met bochten van 90, 60, 45 of 30 graden. Zo kun je meerdere tilpunten verbinden via een vaste route.

Wil je van richting veranderen, bijvoorbeeld vanuit de slaapkamer naar de badkamer en daar zowel het toilet als de douche kunnen bereiken? Dan kun je gebruikmaken van een draaiwissel.

✅ Meest eenvoudige en vaak goedkoopste oplossing – maar niet altijd de meest praktische.

Plafondlift met monorail

Plafondlift met monorail en draaiwissel

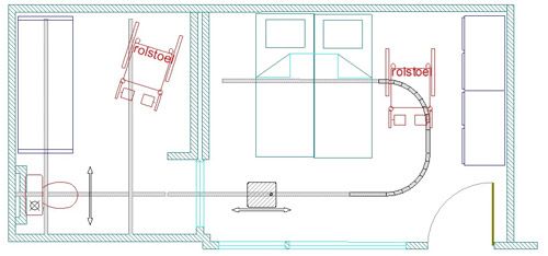
Type 2 Beweegbare plafondrails, H-systeem of X-Y systeem

Een beweegbare plafondrail, ook wel x-y systeem, H-systeem of traverse rail genoemd, biedt maximale flexibiliteit binnen één ruimte. Hoe werkt dit systeem? Twee vaste rails worden parallel aan elkaar aan het plafond bevestigd. Daartussen hangt een beweegbare dwarsrail. Aan deze beweegbare rail wordt de plafondmotor bevestigd. Hierdoor ontstaat een systeem waarbij de motor:

  • links/rechts beweegt binnen de dwarsrail,
  • en de dwarsrail zelf voor/achter beweegt over de vaste rails.

De gebruiker kan zich hiermee vrij bewegen in de volledige ruimte – ideaal voor kamers waar transferpunten ver of onhandig uit elkaar liggen, zoals bij het combineren van bed, toilet en douche binnen één ruimte.

🔧 In kleinere ruimtes of kamers met complexe indelingen is een traverse vaak praktischer, efficiënter en gebruiksvriendelijker dan een monorail met wissels. Ook kan het kosten besparen op ingewikkelde bochten en montage.

Let op: een traverse hangt iets lager dan een monorail. Kies dus voor een type rail met zo min mogelijk hoogteverlies – zeker als de plafondhoogte beperkt is.

Zelfstandig gebruik? Kies voor elektrische aandrijving

Wil je de plafondlift zelfstandig gebruiken met een x-y railsysteem? Dan moet de beweegbare rail elektrisch aangedreven zijn. Handmatig verplaatsen is alleen geschikt voor gebruik met begeleiding.

Een elektrisch x-y systeem wordt bediend met een infrarood afstandsbediening met 6 knoppen:

  • links/rechts
  • voor/achter
  • omhoog/omlaag

Deze systemen zijn vrij specialistisch – slechts enkele leveranciers bieden dit aan. Tiltechniek is een van de aanbieders van volledig elektrische traverse systemen, met oog voor maatwerk, montage en advies. 

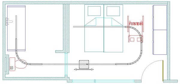
Plafondlift monorail naar badkamer

Plafondlift monorail en connector naar badkamer

Plafondlift met monorail naar badkamer

Plafondlift met traverserail en connector naar badkamer

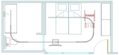
Alternatief op Plafondlift monorail naar badkamer

Alternatief op Plafondlift monorail en connector naar badkamer

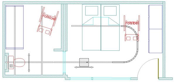
Alternatief op nr 3 en nr 4 samen

Connector / gate om plafondrails te koppelen

Soms wil je twee verschillende railtypes koppelen, bijvoorbeeld:

  • Monorail + x-y rails
  • Twee aparte x-y systemen

Dan gebruik je een connector (ook wel gate genoemd). Er zijn elektrische, elektromagnetische én mechanische varianten. De laatste is goedkoper en minder storingsgevoelig.

Plafondrails met connector

Plafondrails met 2 gates

Deurdoorgang? Een doorlopende plafondrail of een ‘overpak’-oplossing?

Een doorlopende rail door een deuropening is ideaal, maar niet altijd mogelijk. Bijvoorbeeld bij:

  • een bovenlicht met glas
  • een stenen draagmuur
  • leidingwerk boven de deur

Als doorbreken geen optie is, kun je kiezen voor een overpakoplossing (ook wel Tarzan-oplossing genoemd). Hierbij eindigt de rail vóór de deur, en wordt de plafondmotor handmatig overgepakt naar de rail in de volgende ruimte.

❌ Niet geschikt voor zelfstandig gebruik ⚠️ Langzamer en minder gebruiksvriendelijk dan een doorlopende rail, maar vaak goedkoper dan een bouwkundige aanpassing.

Overpak oplossing

Plafondrails doorlopend

Plafondrails overpak oplossing

Plafondrails Tarzan

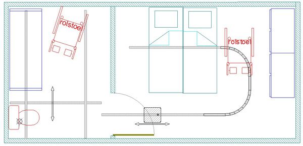
Alternatief op nr 2 en 3 liggend

Alternatief op nr 2 en 3 liggend

Alternatief op nr 2 en nr 3 staand

Meerdere separate tilsystemen in één huis

Als de tilpunten ver uit elkaar liggen (bijvoorbeeld: bed in slaapkamer én bedbox in woonkamer), is het niet altijd efficiënt om één lang railtraject aan te leggen. Je kunt overwegen om twee losse plafondsysteem te gebruiken, eventueel gecombineerd met een verrijdbare douchestoel.

✅ Minder ingrijpend én vaak voordeliger

Spoorlijn rails door het huis

Separate tilsystemen

Alternatief op nr 1 en nr 2

De plafondrail moet jouw volgen, dus niet andersom

Een veelgemaakte fout is dat de plafondrail wordt aangelegd op basis van de plattegrond – niet op basis van het daadwerkelijke gebruik. Een goedkope, recht geplaatste rail boven het bed lijkt handig, maar kan in de praktijk onbruikbaar zijn. Laat je dus goed adviseren door iemand die praktijkgericht meedenkt.

Goedkoopst adequate oplossing plafondlift

Montage plafondrails

Een goed gemonteerde plafondrail is letterlijk van levensbelang. Kies voor een stevige montage met bouten aan beide zijden. Vermijd snelle of goedkope montageclips zonder draagkracht.

Is plafondmontage niet mogelijk (bijvoorbeeld bij een monumentaal plafond of slechte constructie)? Dan zijn er alternatieven:

  • Bevestiging aan de wand (wand-wand oplossing)
  • Plaatsing op palen (vrijstaande oplossing)

Laat je altijd goed informeren. Er is vaak meer mogelijk dan je denkt!

📌 Tip: Vraag een onafhankelijke adviseur of ergotherapeut om mee te denken over de juiste rails voor jouw situatie. De keuze voor een goed railtraject bepaalt voor een groot deel het comfort én de bruikbaarheid van je plafondlift.

Plafondrail met 2 bevestigingsteunen

Plafondrailbevestiging web

Plafondrail wand wand

Plafondrail op poten

Voorbeeld van een x-y plafondrails met connector: